20.09.2024

Umgestaltung und Sanierung des Dorfgemeinschaftshauses in Seubtendorf

Wir freuen uns sehr über das Vertrauen, das uns die Gemeinde Tanna in Thüringen entgegengebracht hat, und übernehmen mit großer Freude die Umgestaltung und Generalsanierung des Dorfgemeinschaftshauses in Seubtendorf.

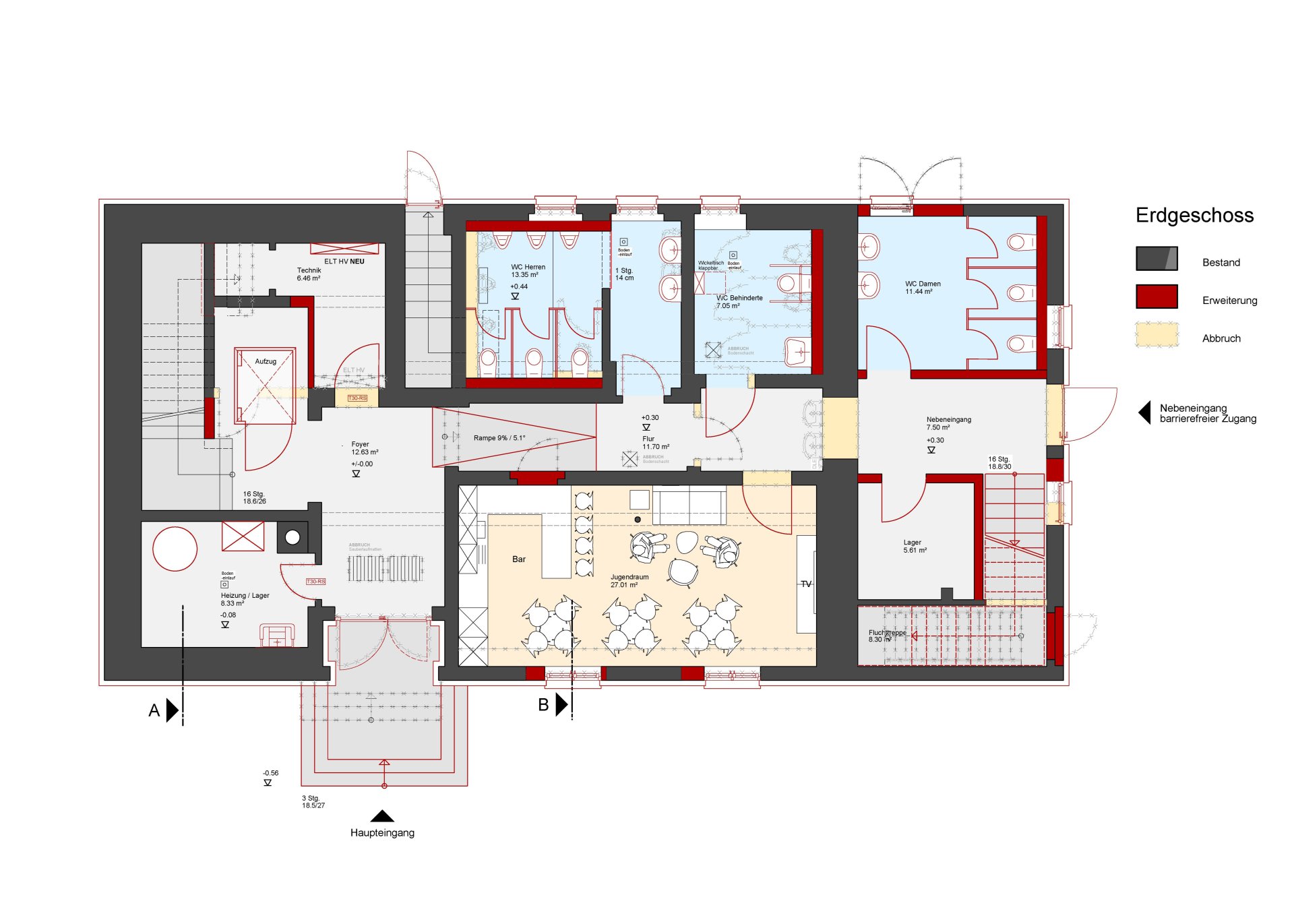
Das zweigeschossige Gebäude wird im Zuge der Sanierung in ein modernes Bürgerhaus umgewandelt, das allen Altersgruppen und Ansprüchen gerecht wird. Im Erdgeschoss entstehen neue Toilettenanlagen sowie ein Raum für die örtliche Jugend, der als Treffpunkt und Freiraum zur Verfügung stehen wird. Im Obergeschoss wird ein großzügiger Bürgersaal eingerichtet, der Platz für Versammlungen und Veranstaltungen bietet.

Besonders wichtig ist der Gemeinde und uns die Barrierefreiheit: Ein Plattformlift sowie ein behindertengerechtes WC im Gebäude ermöglichen allen Besucherinnen und Besuchern einen komfortablen Zugang. Die aktuellen Pläne für das neue Bürgerhaus in Seubtendorf stehen nun zur Ansicht bereit und zeigen, wie das Gebäude nach der Umgestaltung eine moderne und einladende Begegnungsstätte für die gesamte Dorfgemeinschaft wird.